TOTO LSF721AASNWR 取扱説明書 商品図面 施工説明書 分解図
各種図面のご利用については 免責事項をご確認の上ご利用ください。
REAH03B1 自動水栓一体形電気温水器取扱説明書
このデータは2020年10月 現在のものです。
T7SW4 床排水金具取扱説明書
このデータは2020年10月 現在のものです。
LS721C ベッセル式洗面器商品図面
このデータは2020年10月 現在のものです。
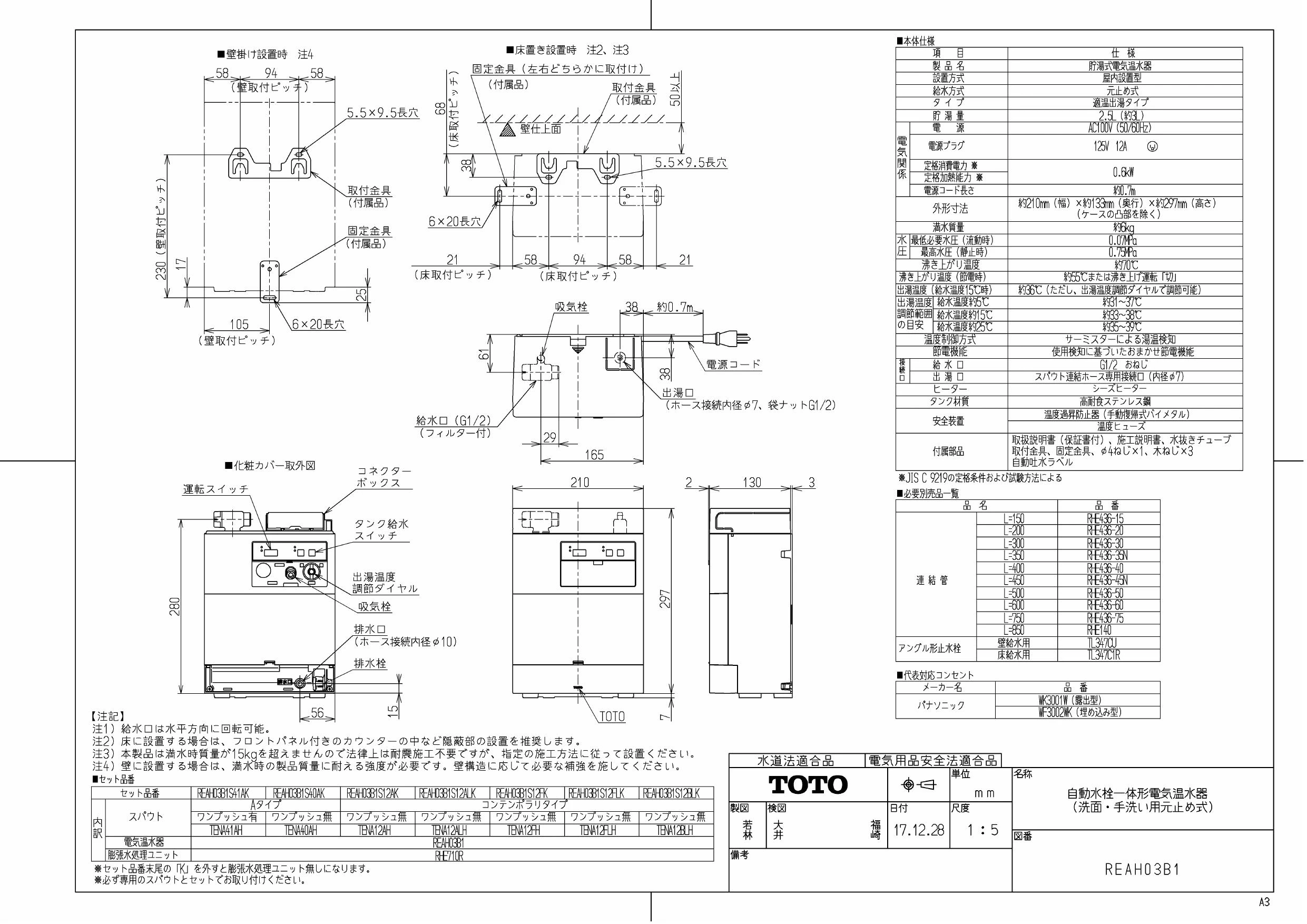
REAH03B1 自動水栓一体形電気温水器商品図面
このデータは2020年10月 現在のものです。
RHE436-40 連結管商品図面
このデータは2020年10月 現在のものです。
RHE710R 膨張水処理ユニット商品図面
このデータは2020年10月 現在のものです。
T7SW4 床排水金具商品図面
このデータは2020年10月 現在のものです。
TENA41AH 台付自動水栓商品図面
このデータは2020年10月 現在のものです。
TL220D バックハンガー商品図面
このデータは2020年10月 現在のものです。
TL347CU アングル形止水栓商品図面
このデータは2020年10月 現在のものです。
REAH03B1 自動水栓一体形電気温水器施工説明書
このデータは2020年10月 現在のものです。
RHE710R 膨張水処理ユニット施工説明書
このデータは2020年10月 現在のものです。
T7SW4 床排水金具分解図
このデータは2020年10月 現在のものです。
TENA41AH 台付自動水栓分解図
このデータは2020年10月 現在のものです。
TL220D バックハンガー分解図
このデータは2020年10月 現在のものです。
TL347CU アングル形止水栓分解図
このデータは2020年10月 現在のものです。















