三菱電機 BFS-100TUG2 取扱説明書 施工説明書 納入仕様図
各種図面のご利用については 免責事項をご確認の上ご利用ください。
取扱説明書
このデータは2022年10月 現在のものです。
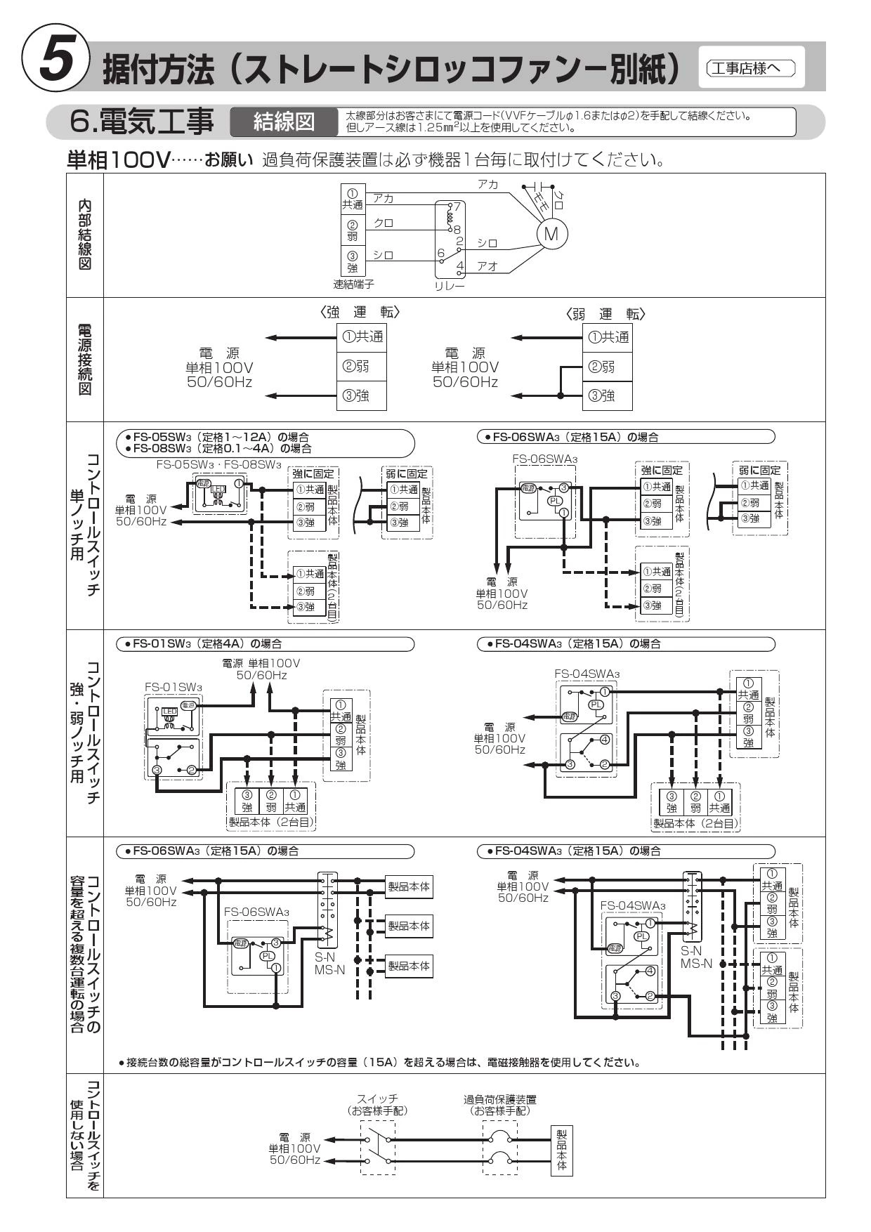
施工説明書
このデータは2022年10月 現在のものです。
BFS-100TUG2-50HZ シロッコファン納入仕様図
このデータは2022年10月 現在のものです。
BFS-100TUG2-60HZ シロッコファン納入仕様図
このデータは2022年10月 現在のものです。
三菱電機 換気送風機技術相談センター
三菱電機お客さま相談センター
三菱電機トップページ
フリーダイヤル:0120-726-471
受付時間:平日9:00~19:00 / 土・日・祝・弊社休日9:00~17:00















