TOTO L652D#NW1+TLE35SS1A+M281+TL595BP 商品図面 施工説明書 分解図
各種図面のご利用については 免責事項をご確認の上ご利用ください。
L652D ベッセル式手洗器商品図面
このデータは2025年2月 現在のものです。
M281 L652用洗面器固定金具商品図面
このデータは2025年2月 現在のものです。
TL595BP 壁排水金具商品図面
このデータは2025年2月 現在のものです。
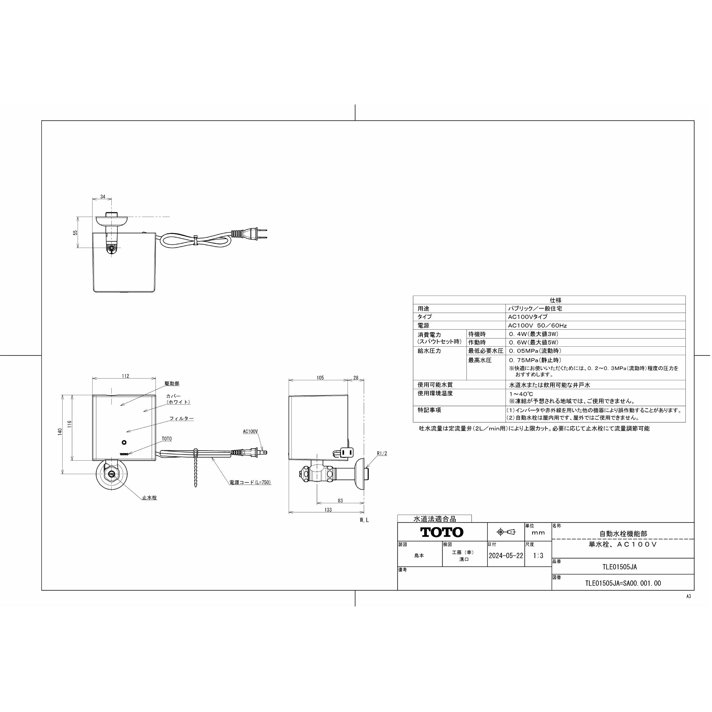
TLE01505JA 自動水栓機能部商品図面
このデータは2025年2月 現在のものです。
TLE35003J 手洗器用自動水栓商品図面
このデータは2025年2月 現在のものです。
TLE01505JA 自動水栓機能部施工説明書
このデータは2025年2月 現在のものです。
TLE01505JA 自動水栓機能部 別紙施工説明書
このデータは2025年2月 現在のものです。
TL595BP 壁排水金具分解図
このデータは2025年2月 現在のものです。
TLE01505JA 自動水栓機能部分解図
このデータは2025年2月 現在のものです。
TLE35003J 手洗器用自動水栓分解図
このデータは2025年2月 現在のものです。















