LIXIL(リクシル) BC-Z30PM+DT-Z380PM+CW-KA32AQC アメージュ便器+シャワートイレKAシリーズ 取扱説明書 商品図面 施工説明書
各種図面のご利用については 免責事項をご確認の上ご利用ください。
CW-KA32AQC シャワートイレKAシリーズ取扱説明書
このデータは2026年2月 現在のものです。
DT-Z380PM 洋風タンク密結便器取扱説明書
このデータは2026年2月 現在のものです。
BC-Z30PM 床上排水155タイプ便器部商品図面
このデータは2026年2月 現在のものです。
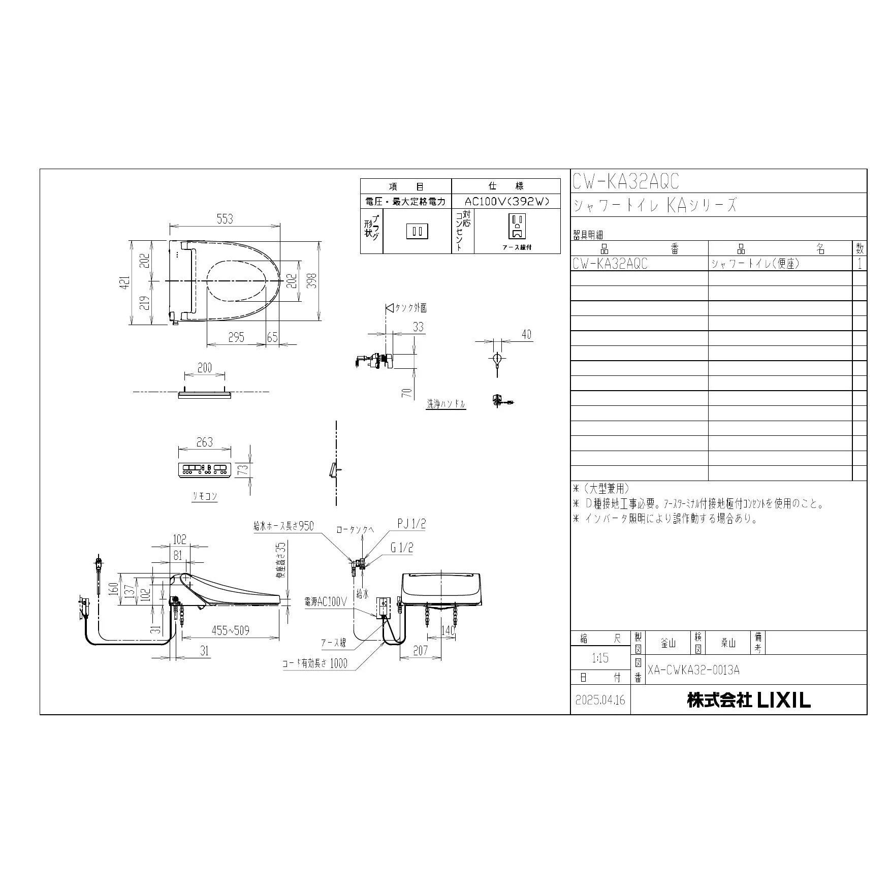
CW-KA32AQC シャワートイレKAシリーズ商品図面
このデータは2026年2月 現在のものです。
DT-Z380PM 防露式密結ロータンク商品図面
このデータは2026年2月 現在のものです。
BC-Z30PM 洋風便器(床上排水155)施工説明書
このデータは2026年2月 現在のものです。
CW-KA32AQC QC用便器洗浄ユニット施工説明書
このデータは2026年2月 現在のものです。
CW-KA32AQC シャワートイレKA施工説明書
このデータは2026年2月 現在のものです。
CW-KA32AQC 壁リモコン施工説明書
このデータは2026年2月 現在のものです。
DT-Z380PM 防露式密結ロータンク施工説明書
このデータは2026年2月 現在のものです。
LIXIL お客さま相談センター
LIXILお客さま相談センター
LIXILトップページ
トイレ製品のお問い合わせ:0120-376-833
シャワートイレ製品のお問い合わせ:0120-376-832
水栓金具製品のお問い合わせ:0120-376-836
洗面化粧台・洗濯脱衣室・洗濯機パン・電気温水器製品のお問い合わせ:0120-376-838
キッチン製品のお問い合わせ:0120-376-834
浴室製品のお問い合わせ:0120-376-837
受付時間:月~金 9:00~18:00 土日祝 9:00~17:00























